Overview
- Updated On:
- February 4, 2022
Description
SouthSide Towns is a townhouse development By i2 Developments at 209 Steeles Avenue West, Brampton. SouthSide Towns has a total of 109 units, sizes range from 1645 to 2100 square feet.
Leave yesterday’s conventional towns behind, and move up to the townhomes of tomorrow at Southside. Own a home whose modern flair and contemporary spirit match your own, here in a spectacular south Brampton location. Luxury, convenience and style to spare – they’re all captured in the most appealing 3 and 4-bedroom townhome designs ever unveiled in the GTA.
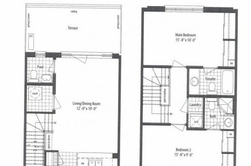
SouthSide Towns Floor Plans
Floor plans are not to scale and is subject to architectural review and revision, including without limitation, the Unit being constructed with a layout that is the reverse of that set out above. All materials, specifications, details and dimensions, if any, are approximate and subject to change without notice in order to comply with building site conditions and municipal, structural, Vendor and/or architectural requirements. Actual floor area may vary in accordance with Bulletin 22 published by the Tarion Warranty Corporation. Bulkheads are not shown on floor plans and may be located in areas of the Unit as required to provide venting and mechanical systems. Balconies, Terraces and Patios if any are exclusive use common elements, shown for display purposes only and location and size are subject to change without notice. Window location, size and type may vary without notice. E.&O.E.


















