Overview
- Updated On:
- February 4, 2022
Description
BT Towns is a townhome development by Dream & Harnak Developments located at Bridletowne Circle, Scarborough in the L’Amoreaux neighbourhood with a 73/100 walk score and a 70/100 transit score. Development is scheduled to be completed in 2018. The project has a total of 60 suites.
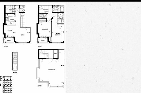
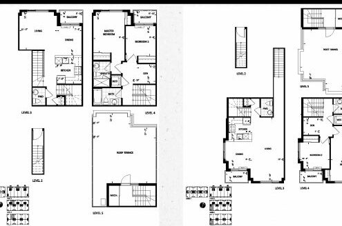
BT Towns Floor Plans
Floor plans are not to scale and is subject to architectural review and revision, including without limitation, the Unit being constructed with a layout that is the reverse of that set out above. All materials, specifications, details and dimensions, if any, are approximate and subject to change without notice in order to comply with building site conditions and municipal, structural, Vendor and/or architectural requirements. Actual floor area may vary in accordance with Bulletin 22 published by the Tarion Warranty Corporation. Bulkheads are not shown on floor plans and may be located in areas of the Unit as required to provide venting and mechanical systems. Balconies, Terraces and Patios if any are exclusive use common elements, shown for display purposes only and location and size are subject to change without notice. Window location, size and type may vary without notice. E.&O.E.



































































